Home
About
Projects
Services
Publications
Competitions & Awards
Contact
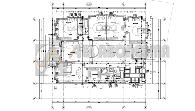
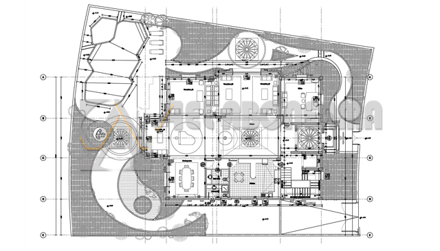
Private House in 6 October, Giza, Egypt - 2009
Art Deco buildings have a sleek, linear appearance with stylized, often geometric ornamentation. ... Art Deco buildings feature distinctive smooth finish building materials such as stucco, concrete block, glazed brick or mosaic tile. The plans offer clean lines, simple proportions, open designs, and abundant natural light, and are descended from international architectural styles. Flat or shallow roofs, large stretches of glass, strong connections with outer space. The form design emphasizes the rectangular forms and horizontal and vertical lines: Shapes of houses are based on boxes or linked boxes. Also, it has decorative moldings and elaborate trim are eliminated or greatly simplified, giving way to a clean aesthetic where materials meet in simple, well-executed joints.
.